Plans. Precision. Performance.
Construction Documents
Comprehensive construction documents that turn design concepts into buildable, detailed plans with clarity and accuracy.
Construction Documents
The following is a typical set of Construction Documents used for Bidding and Permits. Please note, every project is different and the required information varies for each project.
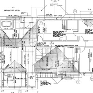
Section and Plumbing Riser Diagram- Illustrates the relationship between the existing building and the new construction, indicating beam locations, and interior elevations. The plumbing Riser Diagram is required by the municipality and indicates the number of plumbing fixtures in the structure and how they are vented.
About us
We are an architecture firm dedicated to designing spaces that are both functional and inspiring. With every project, we take the time to understand our clients’ needs, lifestyle, and vision so we can create designs that reflect their goals.
Our work combines creativity, technical expertise, and attention to detail, resulting in spaces that are timeless, sustainable, and built to last. Whether it’s a new custom home, a commercial development, or a renovation, we approach each project with the same commitment to quality and care.
Our story is rooted in a passion for architecture and a belief that great design has the power to transform the way people live and work. From our earliest projects to the work we do today, we have stayed committed to listening closely to our clients, understanding their needs, and delivering solutions that are thoughtful, functional, and timeless.
Each project is a new chapter in our journey—an opportunity to blend creativity, technical expertise, and collaboration into spaces that inspire.
Our mission is to design spaces that are functional, beautiful, and enduring. We are committed to delivering architecture that reflects each client’s vision while enhancing the communities where we build.
Through creativity, collaboration, and attention to detail, we aim to create designs that inspire and stand the test of time.
Our vision is to shape a future where architecture enriches everyday life, blending innovation with timeless design. We strive to be recognized for creating spaces that inspire connection, reflect individuality, and contribute positively to the built environment for generations to come.








